92 Elkhorn is both an exciting and challenging piece of property to design for. With its slope downward towards the 8th fairway of the Elkhorn Golf Course, the goal was to find a way to maximize the design and the view, while minimizing impact on the land and meeting building envelope, fire prevention, and building height requirements. To support us in this effort are Jim Wilhelm (www.wilhelmarchitecture.com) and Rob King (www.landworkstudio.com). Together, we crafted a home and landscape design that fit all the necessary criteria.

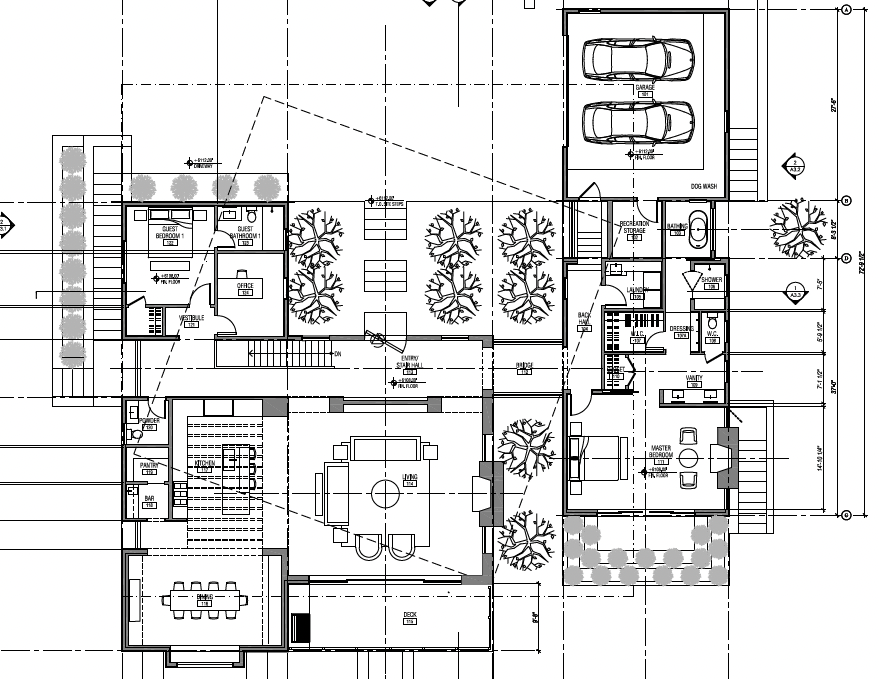
The design of the house includes a 6 foot gabled roof, and is two stories, with no ceiling heights exceeding 14’.  Overall, the interior square footage is 4,600. To maximize the building envelope 30% allowance, we’ve pushed down the hill enough to accommodate the driveway. From the northeast corner of the building to the southwest corner, the terrain drops from 6,116 to 6,087 feet, or 29 feet total. We believe we’ve come up with a clever, beautiful and suitable design.

Our asks from an building architectural standpoint included an entry hallway with a glass bridge separating the master bedroom from the main living space, as well as a dining room separated from the living room area. While most new modern homes are appearing with slanted flat roofs, we desired to have some form of a traditional gable to complement the more modern elements of the design.

Next steps include adding additional detail to both the home design and landscape design, prepping the package for submission to both the City of Sun Valley and the Sun Valley Elkhorn Association.

Leave a comment